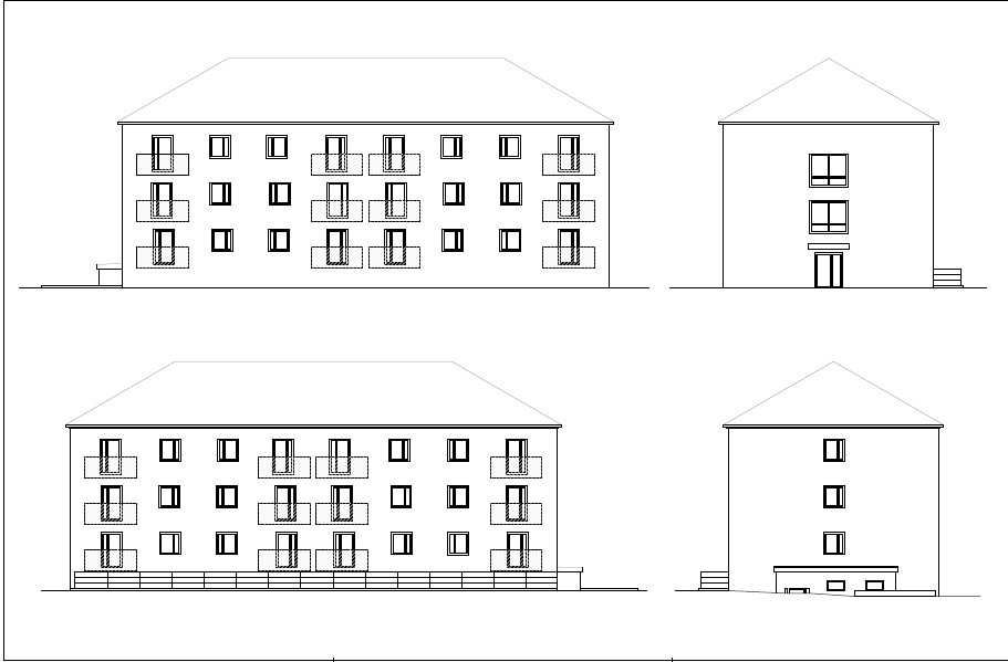
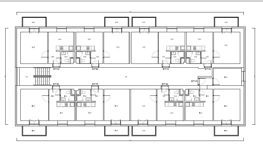
V niekdajšom sídle umeleckej školy dubnická samospráva občanom ponúkne dostupné bývanie vo forme 24 nájomných bytov. Trojpodlažný bytový dom bude pozostávať z jedno- a dvojizbových bytov bežného štandardu, pivničných i spoločenských priestorov. Súčasťou dispozície každého bytu bude kúpeľňa s toaletou, kuchynský kút a nový balkón. Mesto upraví aj okolie budúceho bytového domu, v ktorého blízkosti vybuduje tiež 28 parkovacích státí. „Na rekonštruovanom objekte momentálne prebiehajú búracie práce a výmena okien, budujú sa priečky a robí sa príprava na kanalizáciu. Okrem vnútornej prestavby priestorov dochádza aj k drobným dispozičným zmenám. Najbližšie nás čaká zatepľovanie fasády,“ priblížil prebiehajúce práce na budove zo 60. rokov minulého storočia vedúci stavebného úradu Jozef Králik s tým, že rekonštrukcia zatiaľ prebieha podľa nastaveného časového harmonogramu.
Prestavbu objektu financuje mesto Dubnica nad Váhom prostredníctvom úveru zo Štátneho fondu rozvoja bývania v kombinácii s dotáciou z Ministerstva dopravy a výstavby SR, ako aj z vlastných zdrojov. Celková hodnota investície dosahuje takmer 800-tisíc eur.
Rozširovaním bytového fondu mesta chce samospráva zabezpečiť dostatok príležitostí na rozbeh mladým ľuďom či rodinám s deťmi a zmierniť odliv obyvateľstva do okolitých samospráv za dostupnejším bývaním. „O spôsobe prideľovania bytov verejnosti rozhodne mestské zastupiteľstvo. Zatiaľ však dopyt výrazne prevyšuje ponuku, preto sa uvažuje o prideľovaní bytov formou žrebovania. V podstate ide o prvé nájomné byty, ktoré sa v Dubnici nad Váhom realizujú s podporou Štátneho fondu rozvoja bývania. Máme však už pripravené ďalšie projekty, prostredníctvom ktorých by sme fond mestských nájomných bytov chceli rozšíriť o približne stovku, na mysli mám pritom nielen prestavbu, ale aj výstavbu,“ vysvetlil dubnický primátor Peter Wolf.
Pre viac informácií kontaktujte: PaedDr. Veronika Valuchová, hovorkyňa mesta Dubnica nad Váhom, e-mail: hovorca@dubnica.eu, tel. kontakt: 0917 431 271.

